(850) 353-1883
Sign Up Login

37 Total Photos [Click to View All]

8391 Park Place Drive
Panama City, FL 32404

$279,900 - Status: Active
Bed Icon Beds: 3
Bath Icon Baths: 2 full
Sq Feet Icon SQFT (H&C): 1,427
MLS Icon MLS# 785767

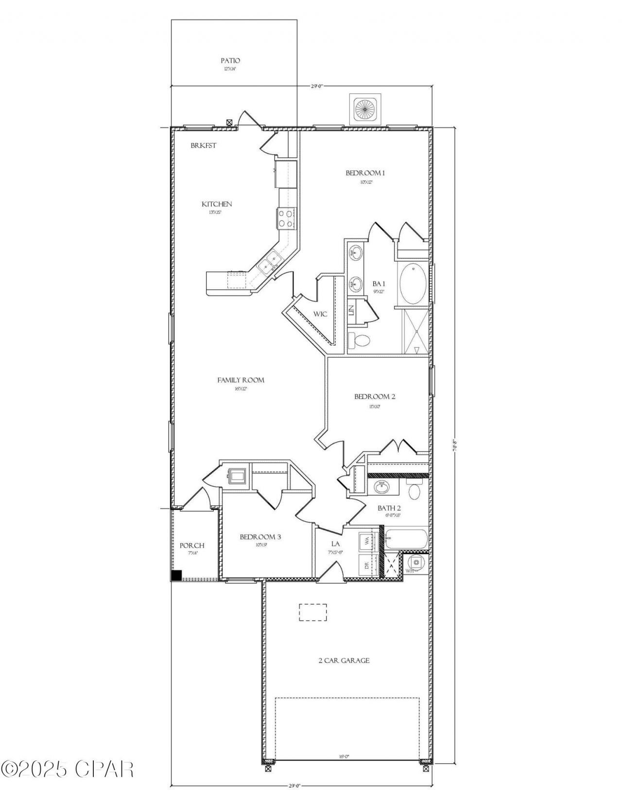
The Celeste floor plan is a 3-bedroom, 2 bathroom, 1,427 square feet open concept home. As you enter, you will notice the living room as the focal point of the home as it opens to the kitchen, hallway, and primary bedroom. The main areas are made with beautiful EVP flooring and carpet in the bedrooms. The kitchen has quartz countertops and shiny stainless-steel appliances including a stove, microwave, and dishwasher. The bathroom also has quartz countertops and EVP flooring, and the primary bathroom features a double vanity while the guest bathroom features a single vanity. Like all homes in Park Place, the Celeste includes a Home is Connected smart home technology package which allows you to control your home with your smart device while near or away. On the outside you will see durable vinyl siding and the spacious 2 car garage. Each home has dimensional shingles with a 30-year warranty. Each yard is fully sodded and has plenty of room to enjoy activities with your family or friends. Our Park Place community features underground utilities making it less susceptible to damage from severe weather leading to fewer outages and more reliable service. Residents of Park Place can enjoy exclusive access an amenity center complete with a pool and playground for all to enjoy. Whatever home you're looking for, you will find one at Park Place. Stop by the model home or schedule a tour online today!

Property Features

MLS#: 785767
Zip: 32404
Subdivision: Park Place Phase 1
Development: 0202 - Bay - Central Se
Property Type: Residential - Single Family
Cooling: Central Air
Days on Site: 52
Fenced: Yes
Garage: 2
Heating: Central, Electric, Forced Air
Home Style: Craftsman
Lot Size: 0.19 acres
Roof Type: Shingle
Year Built: 2026
SQFT (H&C): 1,427

Feature Descriptions

Accessibility: Smart Technology
Appliances: Electric Oven, Electric Water Heater
Association Amenities: Gazebo, Barbecue, Picnic Area
Community Features: Barbecue, Clubhouse, Playground, Pool, Community Pool
Exterior: Vinyl Siding
Interior Features: Smart Home
Lot Description: Paved
Lot Dimensions: 55x150
Parcel#: 06641-600-470
Parking: Garage, Garage Door Opener
Parking Notes: Garage, Garage Door Opener
Patio/Porch: Covered, Patio, Porch
Pool: Community
Security: Carbon Monoxide Detector(s), Key Card Entry, Security Fence, Smoke Detector(s)
Sewer: Public Sewer
Utilities: Cable Connected, Electricity Available, High Speed Internet Available, Phone Connected, Underground Utilities

Room Sizes

Kitchen: 18.3 X 11.3 Level - First
Living Room: 15.1 X 16.4 Level - First
Bedroom: 11.1 X 11.8
Bedroom: 12 X 15
Bedroom: 10.4 X 11
Bedroom: 10.4 X 11

Local Schools

High School: Rutherford
Middle School: Rutherford Middle
Elementary School: Callaway

8391 Park Place Drive | MLS# 785767

This single family home located at 8391 Park Place Drive, Panama City, FL 32404 is currently listed for sale with an asking price of $279,900. This property was built in 2026 and has 3 bedrooms and 2 full baths with 1427 sq. ft. Park Place Drive is located in the Park Place Phase 1 subdivision. Search Park Place Phase 1 real estate on seubanks.beachybeach.com today.

Listed By / Shown By

Listed By

Agency Name: DR Horton Realty of Emerald Coast, LLC

Shown By

Agent Name: Sydney Eubanks
Agent Phone: (850) 353-1883
Agency Title: Beachy Beach Real Estate

IDX logo

Ask a Question

Ask a Question
Disclaimer: All information deemed reliable but not guaranteed. All properties are subject to prior sale, change or withdrawal. Neither listing broker(s) or information provider(s) shall be responsible for any typographical errors, misinformation, misprints and shall be held totally harmless. Listing(s) information is provided for consumers personal, non-commercial use and may not be used for any purpose other than to identify prospective properties consumers may be interested in purchasing. Information on this site was last updated 04/18/2026. The listing information on this page last changed on 04/18/2026. The data relating to real estate for sale on this website comes in part from the Internet Data Exchange program of Delta Media Group MLS (last updated Sat 04/18/2026 12:06:17 AM EST) or Emerald Coast MLS (last updated Sat 04/18/2026 12:05:31 AM EST) or Central Panhandle Association of Realtors (last updated Fri 04/17/2026 11:57:18 PM EST). Real estate listings held by brokerage firms other than Beachy Beach Real Estate may be marked with the Internet Data Exchange logo and detailed information about those properties will include the name of the listing broker(s) when required by the MLS. All rights reserved.
Privacy Policy / DMCA Notice / ADA Accessibility

Login to My Homefinder

Pixel